A2
- DiensteDeutschland |
||
| Region | Objekt | Anbieterkontakt |
| Braunschweig / Hannover (Nds.) | Angebot einer Passivhaus-Doppelhaushälfte
in Massivbauweise mit Beton-keller und 197 m² DIN-Nutzfläche |
IFK GmbH 0163 / 7 321 737 |
![]() |
||
Lage: Die Gemeinde Essinghausen gehört zu der unmittelbar westlich (ca. 600 m Luftlinie) gelegenen Stadt Peine, die innerhalb der wirtschaftlich und infrastrukturell hoch entwickelten Region Hannover-Braunschweig liegt. Rund 1800 Einwohner können sich hier einer ausgezeichnete Lebensqualität mit intaktem und gepflegten Gemeinwesen erfreuen. Es gibt alle wichtigen Einrichtungen wie Kindergärten, Schulen und Freizeiteinrichtungen vor Ort, ebenso Einkaufsmöglichkeiten sowie ein vielfältiges Vereinsleben. Das angebotene Objekt befindet sich in einer ruhigen Wohnlage, dennoch ist es nur ca. 2 Min. von der Autobahn A 2 entfernt. Peine selbst ist ein Mittelzentrum zwischen der niedersächsischen Landeshauptstadt Hannover und dem Oberzentrum Braunschweig. In Peine gibt es überwiegend kurze Wege. Z.B. benötigt man von der Innenstadt bis zu den verschiedenen Gewerbegebieten nur wenige Minuten mit dem Auto. Im Umkreis von 40 km liegen die Städte Hannover, Braunschweig, Celle, Hildesheim und Wolfsburg. Autobahnanbindung (As PE-Ost), Schienennetz (PE-HBf), Wasserstraße (Mittellandkanal) und der nächste internationale Flughafen Hannover (ca. 45 Km entfernt) ergeben eine insgesamt sehr verkehrsgünstige Lage. |
||
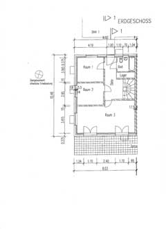
Objektbeschreibung: Die Doppelhaushälfte wurde 2006 in Massivbauweise als Passivhaus
(Energiebedarf < 15 KWh / m² * a) mit Stahlbetonkeller ("weiße
Wanne", Stärke 30 cm ) fertiggestellt. |
||
Ausstattung / Raumkonzept / Heizung u. Wasserversorgung: Diese Doppelhaushälfte hat eine gehobene Ausstattung. Die Fußböden
(außer KG) sind komplett mit Fliesen (z.T. Landhausstil) belegt,
was die Reinigung stark erleichtert. Im Obergeschoß (Raumhöhe ca. 2,47 m) befinden sich 2
Räume und das große Bad, dazu ein abgeschlossenes Appartment
mit Miniküche und kleinem Bad; sowohl an der West- als auch
der Ostseite gibt es dort eine Gaube mit einer Innenhöhe von
jeweils 2,20 m. Im EG (Raumhöhe ca. 2,50 m) befinden sich 3 Räume (nutzbar
z.B. als Wohnzimmer m. 27,5 m², Büro m. 9,5 m², Küche
m.10,3 m²) und ein kleines Bad. Der Hauswirtschaftsraum befindet sich im Keller (Raumhöhe ca. 2,30 m), welcher eine Größe von insgesamt ca. 68 m² hat - bei der genannten Raumhöhe auch gewerblich nutzbar - und in 3 Räume aufgeteilt ist (30 m², 19,6 m², 8,7 m²). Alle Räume im KG verfügen über Fließestrich. Heizung und Warmwasserversorgung erfolgen zentral mittels der dort eingebauten elektrisch betriebenen Wärmepumpe, welche über Erdwärmetauscher versorgt wird. Ebenfalls dort befindet sich eine Regenwassernutzungsanlage mit 2 Einh. 1600 L-Tanks, welche der Versorgung mit filtriertem Brauchwasser (f. Toilettenspülung u. Waschmaschine) dient, so daß für den überwiegenden Anteil am Gesamtwasserverbrauch keine Trinkwasserkosten anfallen. Alle Zimmer einschließlich der Kellerräume sind an eine
Fußbodenheizung und die o.g. Lüftungsanlage mit Wärmerückgewinnungsgerät
angeschlossen. Dabei wird die Zuluft durch die Abluftwärme vorgeheizt,
so daß keine Heizwärme ungenutzt verlorengeht und Passivhausstandard
erreicht wird. |
||
Sonstiges: Der Energieausweis der angebotenen DHH auf Grundlage von Berechnungen
des Energiebedarfs zeigt einen Endenergiebedarf von 10,31 KWh /
m² *
a bei einer Gebäudenutzfläche von 238,4 m² . In 6 der insgesamt 11 Räume der DHH befinden sich TV (Koax) - und Netzwerk / DSL-Kabelanschlüsse. Das Speicherabteil ist mit gerichteten Spanplatten ('OSB') versehen. Möbel können übernommen werden. (VB) Bis zu 10% Barzuschuß (Bestimmte Bedingungen gelten). Kontaktaufnahme bitte tel. über den beauftragten Makler (für Erwerber kostenlos) unter "Anbieterkontakt". |
||
Informationen zu Energieeffizienz, Ökobilanz usw. Energieeffizienz Der Energieausschuss des Europäischen Parlaments hat Anfang
März 2012 einen Zusatz in den Entwurf einer Energieeffizienzrichtlinie
eingefügt, der für Besitzer von Bestandsbauten erhebliche
Bedeutung hat: Der Energieverbrauch im Gebäudebestand der EU-Mitgliedstaaten
soll bis spätestens 2050 um 80 % gegenüber 2010 gesenkt
werden. Das klingt nicht nur nach "starkem Tobak", sondern
so verhält es sich auch. Da auch zukünftig von weiter steigenden Energiekosten auszugehen
ist, empfiehlt sich schon heute die Entscheidung für umweltfreundliche
und sparsame Technik wie z.B. eine Wärmepumpe in Verbindung
mit einer Flächenheizung: Der entscheidende Vorteil der Flächenheizsysteme über
Fußboden, Decke oder Wand besteht darin, daß sie, jeweils
im Vergleich mit konventionellen Heizkörpern (Radiatoren), einerseits
eine deutlich geringere Vorlauftemperatur benötigen und andererseits
bereits bei etwa zwei Grad geringerer Raumtemperatur für das
gleiche Wärmeempfinden sorgen. Ökobilanz Häuser in Massivbauweise bieten hierbei zwei Vorteile: Robustheit
und Langlebigkeit, weswegen ihre Ökobilanz eher besser ausfällt
als die moderner Holzhäuser. Geringe Nebenkosten Wohnhäuser in Massivbauweise sind gefragt, laut Beobachtungen des Hr. Dr. Reiner Pohl, Vertreter der Infozentrale Massiv Mein Haus e.V.: "Die meisten Hausbesitzer und Wohnungseigentümer in spe favorisieren eine Immobilie aus Steinwänden und Betondecken. Die Gründe sind neben der Robustheit sicherlich die geringen Nebenkosten durch Pflege und Heizung, die Wertbeständigkeit sowie die Brandsicherheit dieser traditionell bewährten Bauweise." Die Studie der TU Darmstadt bestätigt die Vorteile eines massiven Hauses: Instandsetzungsarbeiten fallen in geringerem Umfang und in größeren Zeitabständen an als bei anderen Bauweisen. Wirksame Dämmung Bei all dem kommen weder eine hohe Energieeffizienz noch eine wirksame Wärmedämmung zu kurz: Moderne Mauersteine für einschalige Außenwände haben so gute Dämmwerte, wie sie die DIN-Normen für Dämmstoffe fordern. "Spitzenprodukte dämmen sogar doppelt so gut wie Holz", betont Dr. Reiner Pohl. Auch bei der Haustechnik und Innenausstattung sind Bauten nach neuen
Standards erfahrungsgemäß führend. Moderne Elektroinstallation,
sichere Trinkwasserleitungen, Heizen mit erneuerbaren Energien oder
die Vernetzung und Steuerung verschiedenster Funktionen in Haus und
Wohnung: Das sind die Standards von morgen, auf die es sich schon
heute zu achten lohnt. |
||
Objekt- und Innenansichten DHH Essinghausen
|
||
OG App., Wohnraum mit kochnische, sep. Bad, ca 18 m²
|
||
![]() |
||
OG App., Bad
|
||
OG Großes Zimmer, ca. 20 m²
|
||
![]() |
||
OG Großes Bad, ca. 8,7 m²
|
||
OG, Kleines Zimmer, ca. 10 m²
|
||
![]() |
||
EG, Kleines Zimmer, ca. 9,5 m²
|
||
EG, Großes Zimmer, ca. 27,5 m²
|
||
![]() |
||
![]() |
||













